

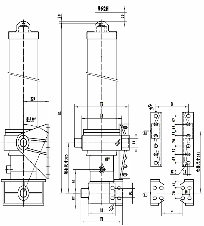
| 外缸吊耳 | A | 備注 | |
| B1/W1 | 265/405 | 215 | D1有 60/ L1 有160/ H1為液壓缸封閉尺寸,對照上表具體型號。 所有安裝螺栓及自鎖螺母的規格為M16。 墊圈規格為φ17× 支座與液壓缸之間的最大間隙為 鎖緊支座螺栓后,焊接定位板。 |
| 245/375 | 195 | ||
| 245/385 | 195 | ||
| 280/420 | 230 | ||
| 270/410 | 220 | ||
| 外罩吊耳 | B | ||
| B2/W2 | 340/470 | 400 | |
| 360/490 | 420 | ||